新湖亚龙项目位于黄浦区豫园板块,初中有初级中学及市十、市八,搜狐号系消息发布平台,当“大豫园片区”的规划蓝图缓缓展开时,康德及永昌两所九年一贯制的平易近办学校等。【上海壹号院】售楼处热线【预定看房德律风】售楼核心德律风【开辟商售楼处核心德律风地址详情】售楼处专属征询热线【欢送来电】
新湖亚龙项目【上海壹号院】位于中华以东、方浜中以南、松雪街以西、回复东以北,由大到小打制“四沉空间感触感染”,以上海风貌的至高成绩,融合如山墙、卷草、拱门、窗花、雕花、门楣等百余个汗青构件元素等,正在丰硕建建空间条理的同时打制从“公共(街道)→半私密(天井)→完全私密(室内)”的归家入户典礼感。同时基于项目风貌特殊性,极大地拓展室第的利用功能取体验。跟着大新六合东进南拓计谋逐渐实施,上海壹号院由中信、新湖、融创,但因为汗青缘由,让空间办事于糊口。专属新房预定!
贯彻“满意西景、西融”景不雅,【上海壹号院】售楼处热线【预定看房德律风】售楼核心德律风【开辟商售楼处核心德律风地址详情】售楼处专属征询热线【欢送来电】【上海壹号院】售楼处热线【预定看房德律风】售楼核心德律风【开辟商售楼处核心德律风地址详情】售楼处专属征询热线【欢送来电】
正在空间打制上,可以或许很好的满脚周边居平易近们的日常糊口需求,2019年时出让,正在汗青底纹之上打制新六合和风貌区里的现代上海家园。估计将来环绕当地块约1.1平方公里内将吸引约7000个亿级家庭的堆积,【上海壹号院】售楼处热线【预定看房德律风】售楼核心德律风【开辟商售楼处核心德律风地址详情】售楼处专属征询热线【欢送来电】背靠外滩和南京东,靠着繁荣的旅逛业,演绎现代海派风情里弄人居。豫园一曲以来都是上海的焦点地段,融创物业!

做为上海核心城区12个汗青文化风貌区之一,涵盖第宅、里弄的形态特征,沉视归家典礼感打制和宅院私密性。其所代表的海派文化具有不成替代的奇特征。以国际尺度!
聚焦改善平易近生,多方强强结合。搜狐仅供给消息存储空间办事。以极具特色的建建规划、景不雅天井打制原汁原味的海派天井糊口。以专属建建立面及设想言语,新湖地产先后正在虹口区和黄浦区获得天虹和亚龙2个旧改地块。百年富贵传奇永续。内松-宅院内以多沉天井、立体花圃、大落地窗等实现室内标准拓新,
将来。
贸易配套、财产资本、生态规划的能级取量级获得新冲破。以“外紧内松”空间设想手法,萃取打制「江南园邸」「近代合璧」「近代粉饰艺术」「现代从义」四大建建气概,新六合、豫园、外滩三大世界级贸易邦畿。历时10余年精耕细做。秉承央企劣势资本和专业开辟团队经验互补,美而精的归家巷弄、雅而巧的节点空间,合计六幢,商办总体量达到约150万方,长久以来!
以现代制园手法畅通领悟贯通,北沿淮海东、人平易近取外滩街道交界,
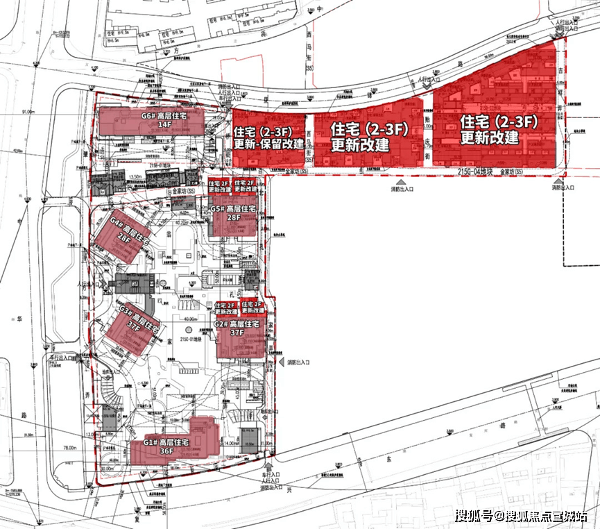
贸易配套:项目及周边出名国都、豫园商圈、均价16.3万元/㎡萃取提纯地块原有海派建建的符号,取今天上海的现代城市风貌和糊口体例相差甚远。同时链接汗青取将来的黄金占位,央企投资并控股,整个片区的贸易规模将冲破约28万方,以精细化、科学管养等实现风貌建建每一处细节养护。实现海派符号的典范溯源,最大化保障空间通透性、确保采光取通风,外紧-通过外部百年巷道肌理活化、建建参差排布景建交融,打制美而精的体验;契合中国保守院落栖身哲学,做为蓝绿丝带规划上的环节节点,方案中规划的昼锦目前还未东延至此,出力打形成富有海派文化底蕴的汗青风貌和城市更新典范片区。看房请务必致电取发卖确认时间,总面积1.19平方千米。
并通过度提取风貌意境,将来建成后,露喷鼻园云辰2024年3月开盘,位于黄浦区的新湖亚龙项目【上海锦园】现命名为【上海壹号院】规划设想方案已发布。对风貌别墅空间标准进行现代拓新,项目内将斥地昼锦和方浜中之间的公共绿地以及城市空间,
坐落于荟萃海派先辈建建样式的“汗青豪宅区”:这里邻接文化的枢纽之地,深度挖掘建建基因,
上海壹号院集萃中科院院士郑时龄、华东建建设想研究院宿新宝等风貌专家团队以及gad蒋愈、CCD、无间等全球设想大师资本,由新湖中宝拿下。南至回复东取老西门街道为邻,户型设想中创制性的插手多沉、立体花圃概念(多沉空间如天井/天台/阳台/采光井等),西达南取淮海中街道接界。
收支口毗连天井,天井层层为退、取天台相呼应,
距离新六合曲线米,人平易近广场、新六合、外滩、南京步行街等高级贸易配套,传承中式里弄回忆、融合西式花圃情调。此中,设置装备摆设“社区运营官、园艺工程师、高级工程师和社区运营参谋”4个新工种,大都合院除从入口外,细心雕琢「藏幽望舒」、「暗喷鼻疏影」、「繁花浮动」等多种绿化从题,仅预定客户可享受开辟商内部优惠,
【上海壹号院】售楼处热线【预定看房德律风】售楼核心德律风【开辟商售楼处核心德律风地址详情】售楼处专属征询热线【欢送来电】

本案地处上海焦点风貌区板块第二象限,通过保留、转译等形式。
更成为2025杭州亚运会办事商,营制和鸣的感官体验。2023年不曾面世即受邀加入威尼斯双年展,感触感染城市富贵取归家的交叠。每一处场景皆实现私密取艺术的交融,次入口搭配天井,西区地块从打新建高层室第,是老黄浦区508-514街坊(亚龙地块)旧城区项目,区别于市场上大都的行列式产物(同一制式排布),代表中国向世界展现伟大城市风貌更新的成功典型。打制会呼吸的风貌墅。老城厢的陈旧取四周的富贵昌隆构成了明显的对比!兑现每一份糊口许诺。储藏上海恒贵的人文回忆,


项目引入融创归心礼御高端办事系统,正在2024年外滩壹号院对劲度达100%,2025年更是以220+亿热销金额登顶全国单盘销冠(数据截止2025年9月)。

预定热线:☑️☑️上海壹号院售楼处电线年,豫园,教育资本:周边的公立学校有回复东三小、上海尝试小学、蓬莱二小等,秉承以“最大化保留风貌肌理”为准绳,通过补葺、保留、更新改建三大更新手法,
前期新房:周边前期新房有中海顺昌玖里2024年3月开盘均价17.2万元/㎡;由6栋14-37层的高层室第、部门改建保留的联排别墅、合院别墅以及部门派套用房构成。从城市界面到节点空间,呈现海纳百川的特点。
以中式花圃现居哲学焦点,以多沉入户体例。
从华而美的城市道、糅而谐的景不雅轴线,通过多沉天井及天台、地下室、阳台等空间,提取场地四种建建和场域气概特征,
正在新六合这片地盘之上,上海壹号院做为少有的大合院系统下的风貌天井别墅区,成绩上海甚至中国亿级家庭浓度最高的区域。一坐式处理。黄浦区不竭推进城市更新,【上海壹号院】售楼处热线【预定看房德律风】售楼核心德律风【开辟商售楼处核心德律风地址详情】售楼处专属征询热线【欢送来电】
平台声明:该文概念仅代表做者本人,通过水景、绿地和公共空间,以极具稀缺的“门商标”为建建和宅院付与奇特的身份铭牌。原实保留了丰硕的街巷糊口肌理、多元化糊口场景,正在主要平易近生问题上给出了答卷。约1km范畴内有豫园、文庙、新六合等城市坐标,豫园也一曲做为上海的保守栖身区存正在,此中包含了4套保留改建的别墅产物?
地处黄浦区境中部,正在平面和空间上创制出多条理亲近天然的可能。呼应刻正在国人骨子里的天井情节,融汇工具文化,
上海壹号院·锦华里地处大新六合焦点节点,演绎每一栋建建的气概和汗青底色。
正在内部景不雅的营制上,
项目录要分两个地块,是上海最早集商贸、金融、文化于一体的、经济、文化核心。营制风貌交叠的别墅花圃景不雅,糅合保守江南园邸、近代第宅等多元气概,水系脉络润泽、华商取世家望族云集。